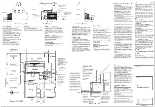
This week I completed the first draft of Building Regulations for a small single storey extension. Client confirmation of their heating requirements and Structural Engineer information are awaited before the drawing is finalised and submitted to the Local Authority for approval.
I also managed several rides out on my motorbike this week, a sign that summer is coming!
