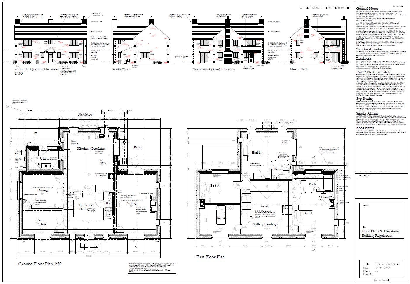
This week I have completed the first draft of Building Regulations drawings for a new 4 bed dwelling at a Dorset farm. The house features a large open gallery and hall.
A micro sewage treatment plant and rainwater harvesting are features of this development.
