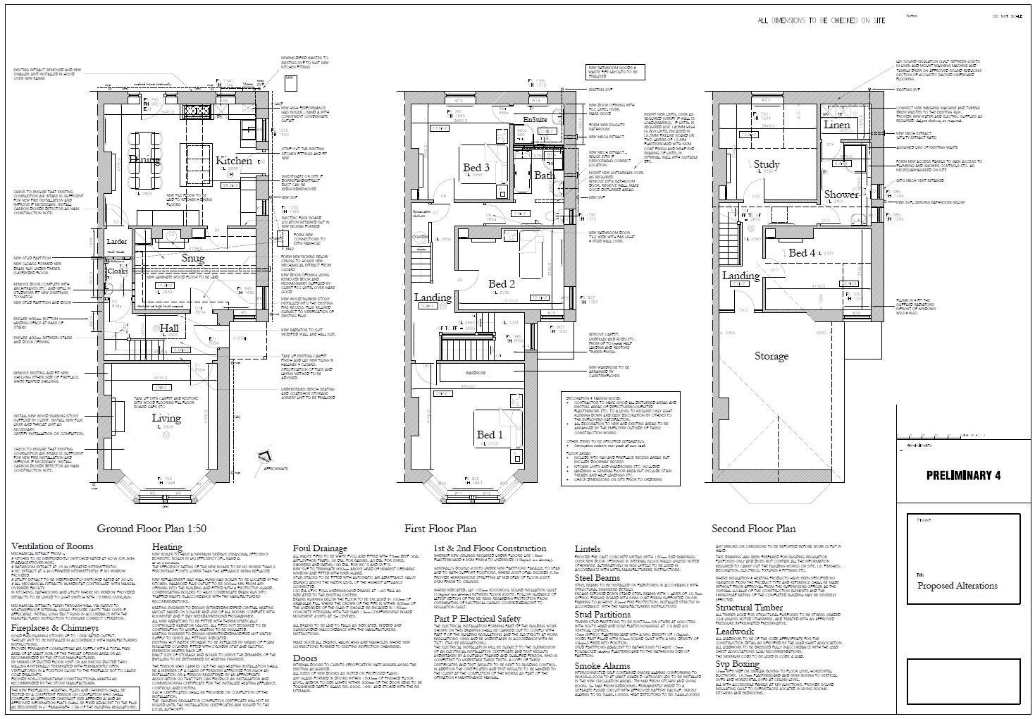
This week I have completed the detailed plans for a Building Regulations application and working drawing information for internal alterations to a property in Sherborne referred to in post 10.
Alterations & Refurbishment, Building Regs
Building Regs for Alterations – 13
