Working from home all week at the moment, nice to have the patio doors opening onto the garden on sunny days. If only I could shade the computer screen from the sun….
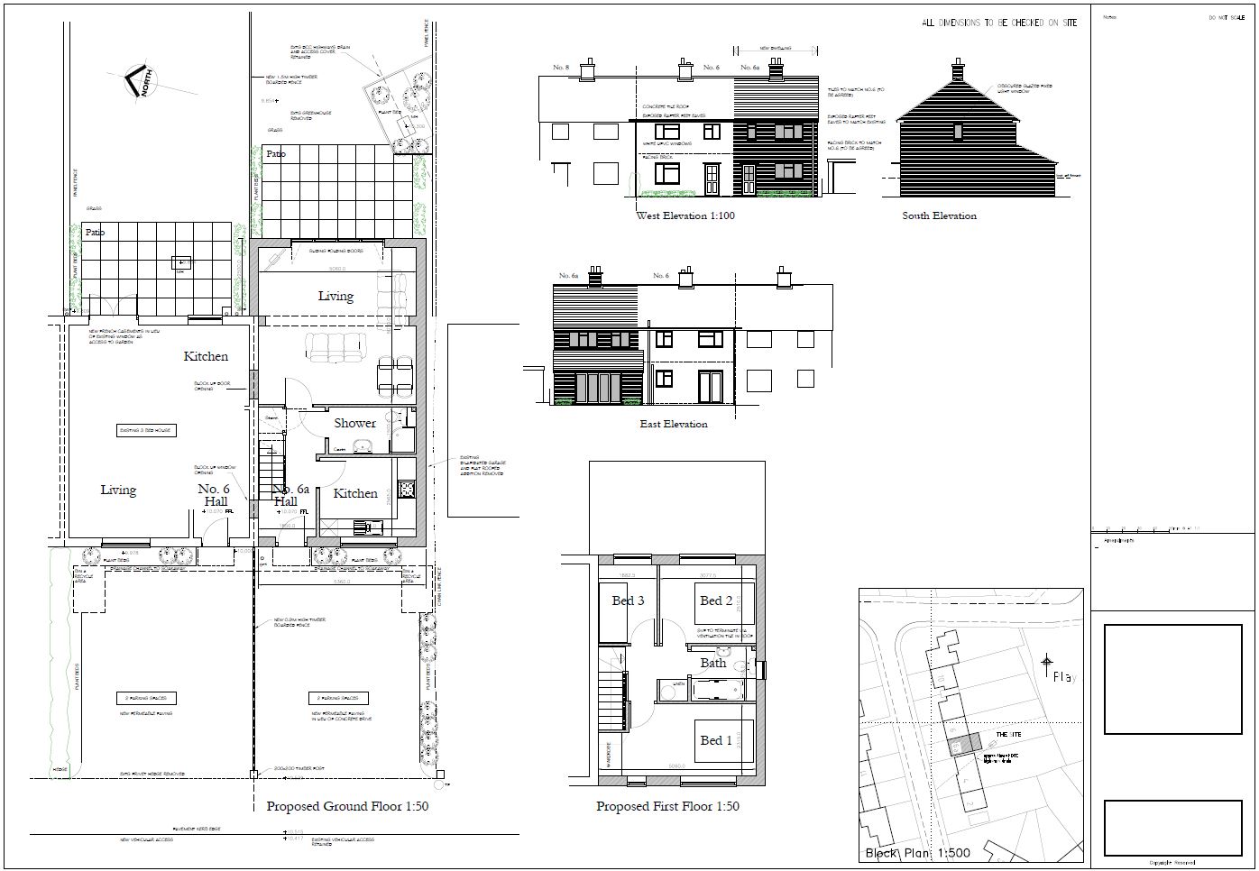
This week I have completed a planning drawing for a new dwelling on a gap site created by splitting an existing site into two and building on from an existing semi detached property.
