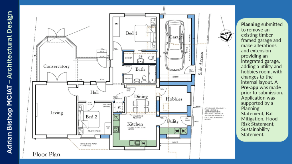
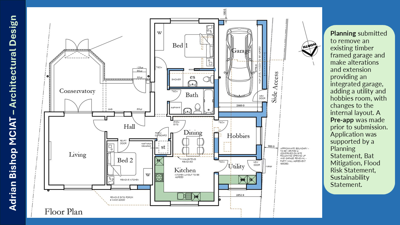
Planning submitted to remove an existing timber framed garage and make alterations and extension providing an intergrated garage, adding a utility and hobbies room, with changes to the internal latout. A Pre-app was made prior to submission. Application was supported by a Planning Statement, Bat Mitigation, Flood Risk Statement, Sustainability Statement.
