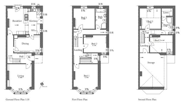
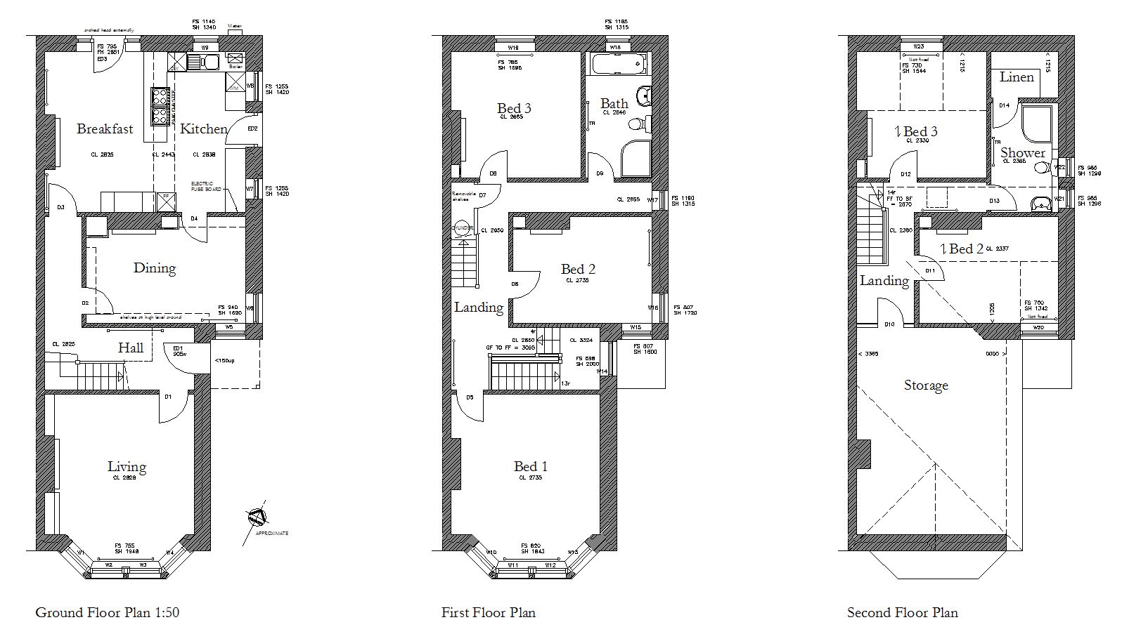
On the drawing board this week I surveyed a large house in Sherborne. The new owner wants some alterations carried out to the internal arrangement.
Alterations & Refurbishment, Surveys
Survey in Sherborne – 10
Alterations & Refurbishment, Surveys