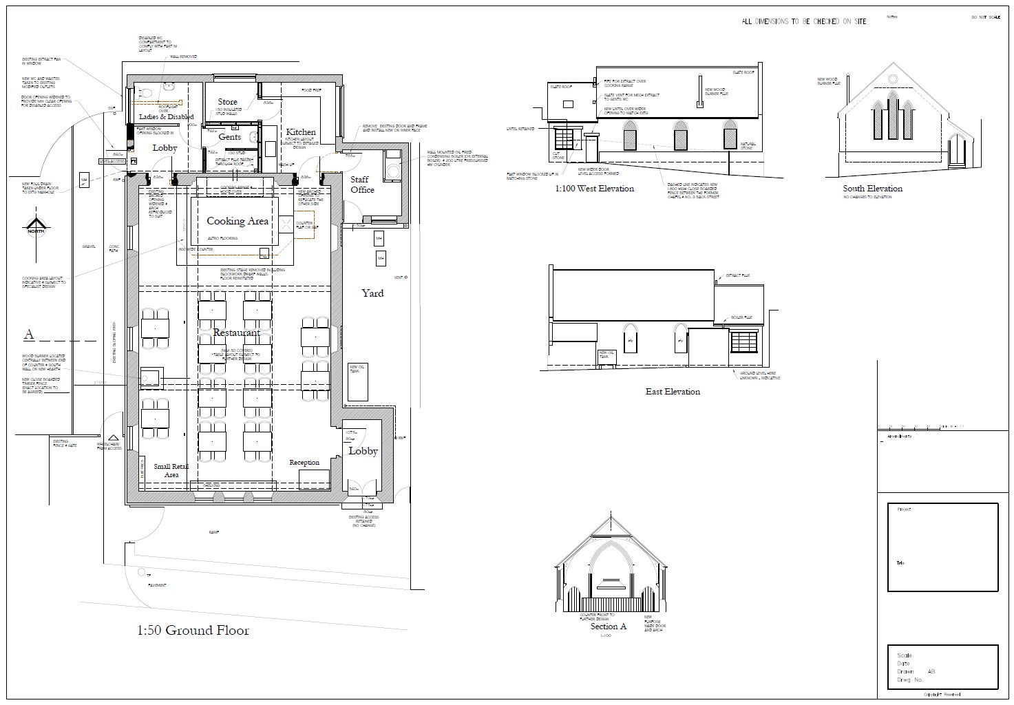
Alterations & Refurbishment, Other Buildings, Planning, Surveys Chapel converted to a Restaurant – 26 Date: May 1, 2014Author: digitaltechnologist 0 Comments Change of Use Former Chapel to be converted to a Restaurant Share this: Share on Facebook (Opens in new window) Facebook Share on X (Opens in new window) X Like Loading... Related