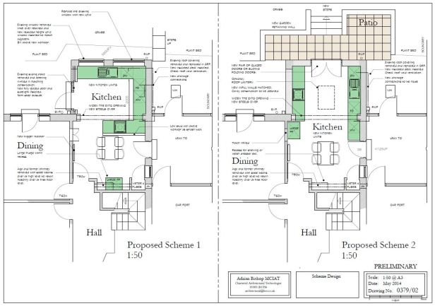
Proposed alterations to an existing kitchen. Choice of two schemes to improve the layout of the kitchen within the existing space. Which do you prefer?
A3 size drawing.
Alterations & Refurbishment, Building Regs, Extensions, Planning
Kitchen Extension Scheme Design – 27
