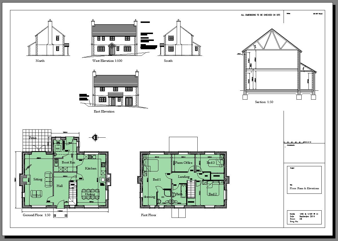
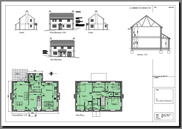
New Housing, Planning Proposed New House – 29 Date: October 11, 2014Author: digitaltechnologist 0 Comments I have been working on an initial design for a new 3 bedroom house. Elevation detail yet to be decided….. Share this: Share on Facebook (Opens in new window) Facebook Share on X (Opens in new window) X Like Loading... Related