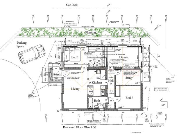
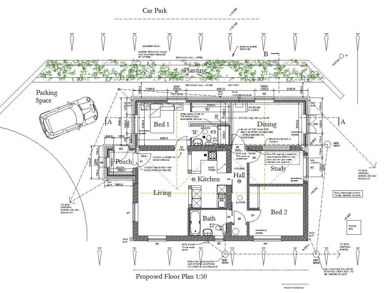
Building Regulations plan of extension & alterations to a bungalow on a holiday camp.
Redline added to some notes to highlight minor note changes requested by the Building Control checking officer.

Alterations & Refurbishment, Building Regs, Extensions, Planning